– Vi har påbörjat ett projekt som kallas för Nya Kämnärsrätten, som innebär att vi vill riva de så kallade Fyrklöverhusen på Kämnärsrätten och ersätta dessa med moderna och energieffektiva bostäder för studenter. Projektet innebär också ett samarbete med Serviceförvaltningen på Lunds kommun, säger Henrik Krantz som är vd på AF Bostäder.
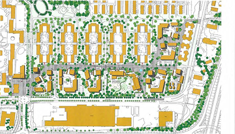
Fyrklöverhusen på Kämnärsrätten har idag ett omfattande renoveringsbehov, och börjar närma sig slutet av sin livslängd som ändamålsenliga studentbostäder. Idag bor cirka 700 studenter i Bostäderna. Genom projektet Nya Kämnärsrätten har AF Bostäder nu hittat en lösning som gör nytta både för studenter och för andra Lundabor. Mellan 1 200 och 1 500 nya studentbostäder kan uppföras i det nya projektet. I planen ingår också att bygga en tredimensionell fastighet tillsammans med Lunds kommun som uppför en flexibel enhet avsedd för förskola och årskurs F till 3 i en av de nya byggnaderna.
– Vi ser en fantastisk möjlighet här. Kostnaderna för underhåll och energiförbrukning i de här bostäderna är inte försvarbara. Kan vi dessutom nästan dubblera antalet bostäder och få in skolverksamhet i ett av Lunds hetaste områden så är fördelarna uppenbara, säger Magnus Cederberg, fastighetsutvecklingschef på AF Bostäder.
Projektet kräver en detaljplansändring och AF Bostäder har begärt en sådan ändring. Om denna beviljas kan projektet påbörjas 2017 och genomföras i etapper.
– Går ändringen igenom kan vi börja projektera under 2017. Vi måste dock genomföra förtätningen i etapper så att vi kan tillgodose bostadsbehovet för de studenter som bor i Fyrklöverhuset idag. Studenterna som bor där då måste få likvärdiga ersättningsbostäder. Vi siktar på att kunna slutföra projektet under 2028, säger Magnus Cederberg.
Fyrklöverhusen på Kämnärsrätten färdigställdes 1969. Arkitekt var Hans Westman som ritade flera byggnader i AF Bostäders bestånd, bland annat liknande Fyrklöverhus i området Gylleholm.



